RU
+38 0472 51 51 64
Черкаси
ПН-ПТ 9:00 - 18:00 вул. Одеська, 50, оф. 504
другой город
Увійти
дизайн-студія інтер'єру

Вітальня у квартирі в ЖК Андорра

BASE
0.00
-0%
0.00
Економія 0.00
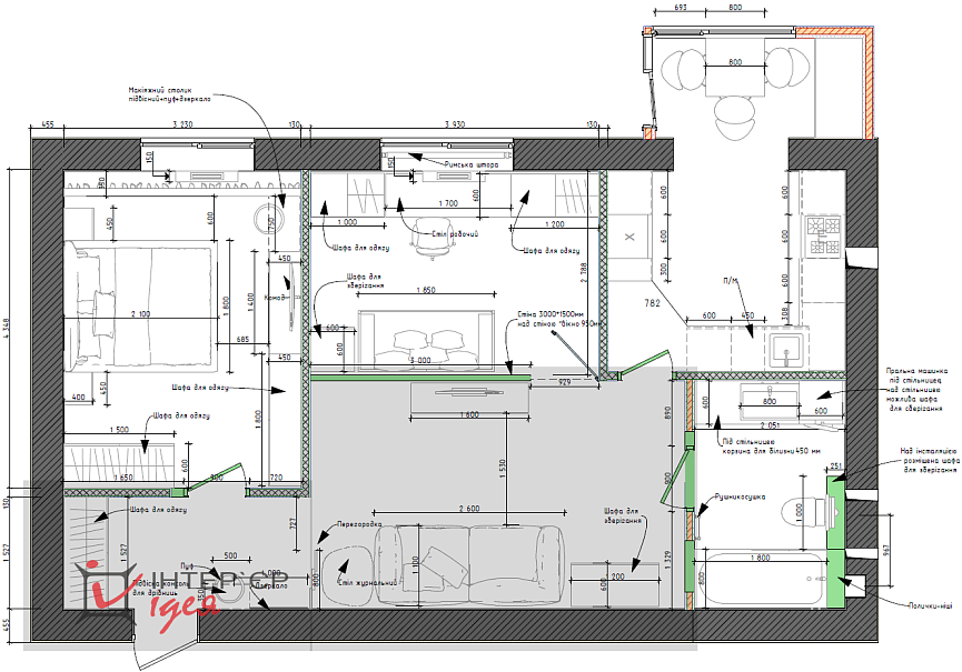
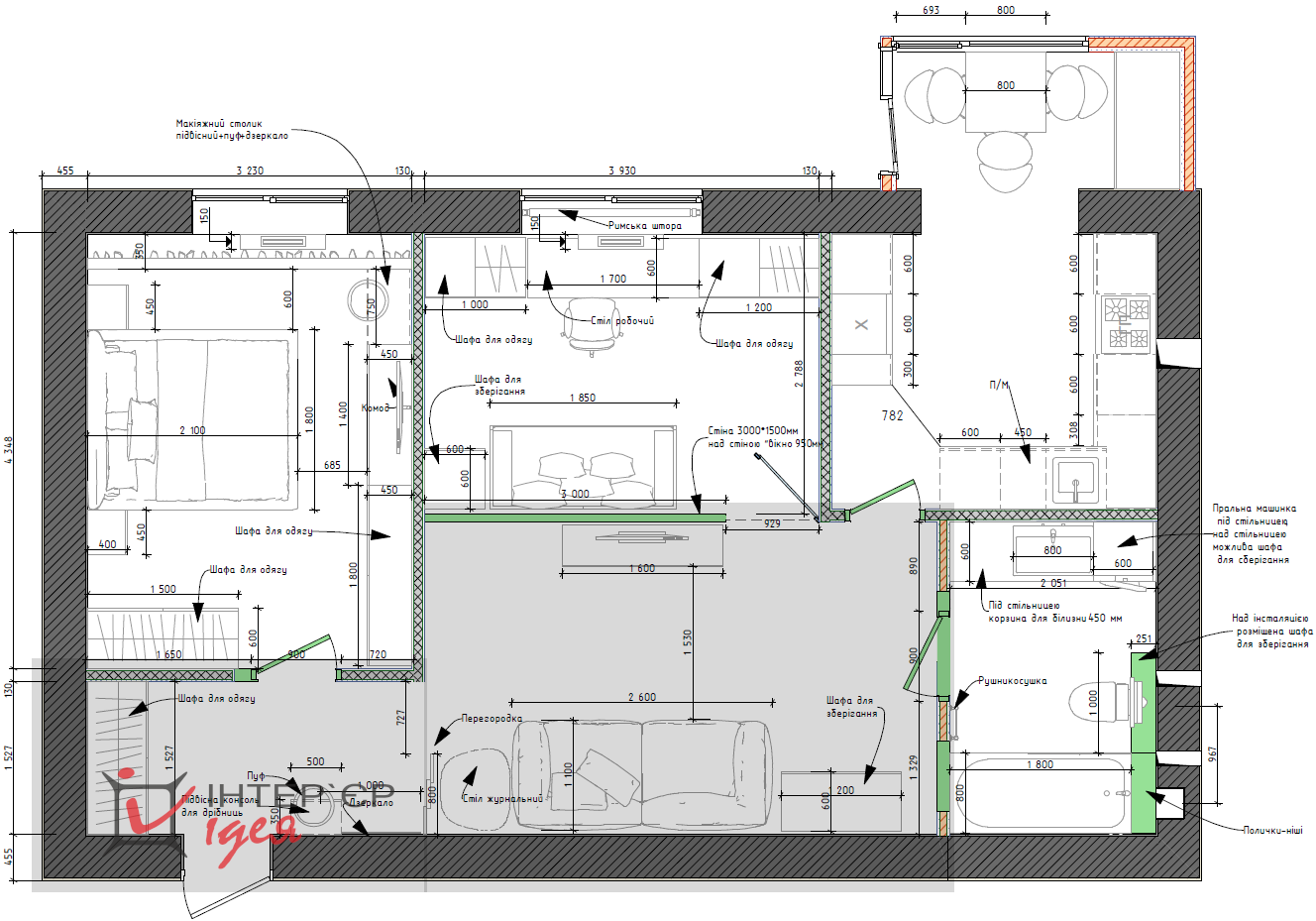
Площа всієї квартири становить 67 м², і кожен квадратний метр тут продуманий до деталей. Вітальня у цій квартирі виконувала одразу кілька важливих функцій — зона для відпочинку, перегляду фільмів, зберігання речей та створення затишної атмосфери для гостей. Простір не має власного вікна, тож одним із головних викликів було забезпечення природного освітлення. 
Характеристики

Категорія
Дата
Серпень 2025
Стиль
Мансарда
Без мансарди
Площа
22 м.кв
Опис
Рішенням стало скління у верхній частині перегородки, яке з'єднує вітальню з кабінетом і дозволяє денному світлу проникати всередину. 

Особливістю приміщення є наявність трьох дверей, що розташовані на одній стіні. Щоб зберегти цілісність інтер'єру, двері виконані прихованими — в тон стін — із мінімалістичними ручками. Телевізійна зона розміщена навпроти дивану: декоративні полиці та підсвітка створюють затишну атмосферу й додають глибини композиції. Під телевізором розташовано довгу вбудовану тумбу з натурального шпону дуба — вона забезпечує приховане зберігання. 

Для оформлення стін обрано графічний декор з чіткими лініями, який робить інтер’єр сучасним і динамічним. Розкладний диван має просту геометрію та нейтральний текстиль, що робить його доречним як для щоденного користування, так і для розміщення гостей. Додаткове освітлення вбудоване у стелю та використане зонально — в тому числі над полицями та біля входу.

Усі матеріали підібрані в єдиній теплій палітрі: дерево, м’який текстиль, матові фасади. Додаткове освітлення розміщене зонально — над телевізором, у стелажі й у зоні передпокою. Завдяки цьому приміщення вийшло світлим, спокійним і функціональним.

Інтер’єр виконаний у сучасному мінімалістичному стилі з елементами скандинавської стриманості та легким індустріальним акцентом у вигляді скляної перегородки з чорною металевою рамою.
Відгук клієнта
Антон Котюх
Професіонали своєї справи, раджу до співпраці!
Відгук дизайнера
Особливо приємно було спостерігати, як темне приміщення без вікна "ожило" завдяки простим, але ефективним рішенням. У підсумку вийшла вітальня, яка гармонійно доповнює загальну концепцію квартири.
Інші кімнати в цьому проекті

На сайті студії Інтер'єр-Ідея представлено виключно роботи наших дизайнерів.
Інтер'єр-Ідея - дизайн інтер'єру в м. Черкаси, Черкаська область.